-
河北冀縣暖氣片鑄造廠沖天爐除塵器的改造
發布日期:2016-10-01
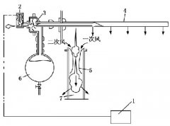
沖天爐濕式除塵器是一種投資比較少,效果較理想的方法,但隨著環保力度的不斷加大,有些地區沖天爐濕式除塵器已不能達到環保局的標準,我們開發了一種高溫布袋除塵器用于沖天爐的除塵效果十分理想,煙氣由沖天爐煙囪引出后經過冷卻器降溫后進入布袋除塵器,然 -
燃煤鍋爐布袋除塵器結構介紹
發布日期:2016-10-01
隨著O環保形式的日益嚴峻,一些大型的燃煤鍋爐的煙氣排放濃度不能達到O要求的排放標準,這就需要有一臺合理的除塵設備來完成,經過多年的改進與研究,布袋除塵器顯然是燃煤鍋爐O的除塵設備,下面我們來介紹一下燃煤鍋爐布袋除塵器結構。 -
生物電廠秸桿破碎機的布袋除塵器設計
發布日期:2016-09-22
生物質電廠秸稈粉碎、輸送系統粉塵綜合治理就是與工藝專業配合,通過將粉塵控制在封閉的空間內,然后運用通風的方法,消除揚塵點的局部正壓,保持該區域的負壓,使排風中含有高濃度粉塵,不能直接排放至大氣中,需要設置除塵設備,將粉塵有效地從氣流中分離, -
旋風除塵器選型的比例關系
發布日期:2017-12-10
如何快速確定旋風除塵器的三圍尺寸,由上述選定高壓式離心風機可知處理風量Q,碎屑在管內的運動速度μ,O旋風除塵器(沙克龍)進塵口面積s=進塵口長a*進塵口寬b,根據O旋風除塵器幾何尺寸的比例關系如下表 -
家具廠布袋除塵器的運行及維護
發布日期:2017-12-08
從目前袋式除塵器在家具廠生產車間運用情況看,存在重選型,輕風網設計的問題,并忽視除塵系統的調節與維護,及時有效地解決除塵器運行中的故障,不但能保證生產的連續性,而且延長除塵器的使用壽命有著積極的意義。 -
水泥廠主要塵源點的含塵濃度和氣箱袋式除塵器的凈過濾風速建議值
發布日期:2017-12-08
水泥廠主要塵源點的含塵濃度和氣箱袋式除塵器的凈過濾風速建議值:石灰石破碎及物料轉運點除塵器,原料輸送及貯存除塵器,原煤輸送貯存除塵器,機械空氣選粉機除塵器,斗式提升機除塵器 -
布袋除塵器進風口的設計研究
發布日期:2017-12-08
布袋除塵器的進風口看似簡單,其實里面有很大的學問,一臺好的布袋除塵器必須要設計一個合理的進風口,布袋除塵器進風口是否合理直接影響著除塵器的清灰系統,我們在設計除塵器進風口的時候第一考慮到的就是均勻布風,其次就是根據除塵系統現場條件考慮采用哪 -
邢臺隆堯鑄造廠砂處理生產線除塵器通過環保部門驗收
發布日期:2017-12-08
2017年12月8日我公司為邢臺隆堯汽車配件鑄造廠砂處理生產線設計安裝的PPC64-5布袋除塵器和PPC32-6氣箱脈沖除塵器成功通過環保部門的驗收,經測量排放濃度低于30mg,達到O一類排放標準。 -
中頻電爐除塵器系統方案的最終確定
發布日期:2017-12-08
根據中頻電爐冶煉過程產生的煙氣特點,結合本公司多年來在冶金高溫煙氣除塵方面總結出來的經驗,中頻電爐煙氣治理系統工藝遵循“低阻、中溫、大流量”的設計原則。 -
覆膜除塵布袋在超細粉未過濾收集領域的優勢
發布日期:2017-12-08
覆膜除塵布袋是O外新近開發研制的新型除塵布袋,具有很高的濾塵效率,應用在超細粉未過濾收集領域,技術優勢明顯,超細粉比如打印機墨粉、化工染料、噴塑粉等超細粉末,覆膜除塵布袋對于平均粒徑0.5微米的粉塵,除塵效率達99.99%,排放濃度可以實現穩定達標。 -
LFD復膜扁袋除塵器制造要求
發布日期:2017-12-08
LFD復膜扁袋除塵器采用微孔薄膜濾料防靜電除塵布袋,經常被應用于石化、冶煉、電力、采礦等行業的易燃易爆粉塵(如煤粉、硫粉、鎂粉等)的凈化處理。所以LFD復膜扁袋除塵器的制造要求也就有了明確的規定。 -
HMC系列布袋除塵器維護和檢修
發布日期:2017-12-08
HMC系列布袋除塵器是一種O的脈沖清灰除塵器,它由進風口、消音器、箱體、除塵骨架、濾袋、清灰裝置、灰斗、插板閥、集灰小車、電控系統等組成。隨著HMC系列布袋除塵器在建材、輕工、冶金、化工、制藥等行來中的廣泛應用,我們對設備的維護與檢修工作也要做 -
寧夏石嘴山電石爐布袋除塵器改造業務
發布日期:2017-12-08
寧夏石嘴山某硅鐵廠電石爐布袋除塵器已運行12年,除塵器為正壓運行系統,由于設備結構腐蝕老化,需要對其結構和內部濾袋進行大修業務,我公司憑借多年電石爐除塵器生產經驗,為用戶提出將現有正壓運行系統改為負壓運行除塵器,從現有除塵器的基礎上增加一套高壓脈站清灰 -
承攬布袋除塵器節能降耗改造業務
發布日期:2017-12-08
響應O節能減排號召,對冶煉行業高耗能布袋除塵器技術改造,根據O的環保要求,其煙塵治理已達到新的水平,深入分析實際的生產工藝,利用現有設備,采用有效的自動控制手段,可進一步降低冶煉行業除塵系統風機的耗電量,達到O佳的節電效果 -
除塵設備量身定做 合適最重要
發布日期:2017-12-08
根據用戶現場實際情況,除塵設備量身定做,保證低成本O率。除塵效率高的除塵設備往往動力消耗較大或除塵設備初期制作費用較高。因此應在全面衡量裝置的技術指標和經濟指標的基礎上進行選擇。 -
脈沖閥的好壞對脈沖清灰除塵器的影響
發布日期:2016-10-01
脈沖閥是脈沖清灰除塵器O重要的元件, 脈沖閥特性直接影響脈沖氣流曲線, 因此對脈沖閥的研究顯得尤為重要。我公司根據脈沖閥的特性所設計出的O清灰系統除塵器,可提高過濾風速,節省除塵系統的總體造價,減低設備制造成本。并能夠保障除塵器的運行阻力減小 -
經驗證美塔斯除塵布袋適用于瀝清攪拌站煙氣處理
發布日期:2017-12-08
瀝清攪拌站除塵器工作條件十分復雜,粉塵煙氣溫度在除塵器內高達120℃-220℃之間,煙氣濕度在5-15%,含塵濃度在30g/m3以下,粉塵粒子直徑大多在10-15μm之間,所以濾袋面臨著高溫、高濕、高濃度粉塵環境的考驗,如果瀝青攪拌濾袋選擇不合適,不但使設備不能正常生產,而 -
脈沖反吹式布袋除塵器工作原理
發布日期:2017-12-08
脈沖式除塵器是一種O除塵凈化設備,采用脈沖噴吹的清灰方式,具有清灰效果好、凈化效率高、處理氣量大、濾袋壽命長、維修工作量小、運行安全可靠等優點;但需要壓縮空氣,而且當供給的壓縮空氣壓力不能滿足要求時,清灰效果會大大降低。由于脈沖袋式除塵器優點突出, -
山東梁山掛車廠定購的噴砂房布袋除塵器已發貨
發布日期:2017-12-08
山東梁山華亞掛車廠2017年12月1日定購的DMC-360噴砂房布袋除塵器已發貨,此除塵器采用OO新工藝和原理設計,適用于噴砂房各種微細粉塵的捕集,其收塵效率達98.5%,噴砂房除塵器殼體設計具有旋風分離原理,預除塵階段粗顆粒粉塵可回收1/3,從而布袋除塵器使用年限更長 -
內蒙古察右中旗鐵礦破碎機布袋除塵器運行粉塵排放5mg
發布日期:2017-12-08
2017年12月8日我公司為內蒙古察右中旗鐵礦EF600*900鄂式破碎機和錘式破碎機安裝的PPC96-8氣箱脈沖布袋除塵器取得了十分理想的效果,環保第三方監測粉塵排放濃度5mg。
